ADRIALE LIVING d.o.o. Obala b.b. 71260 Kreševo, BiH adriale@adrialeliving.com

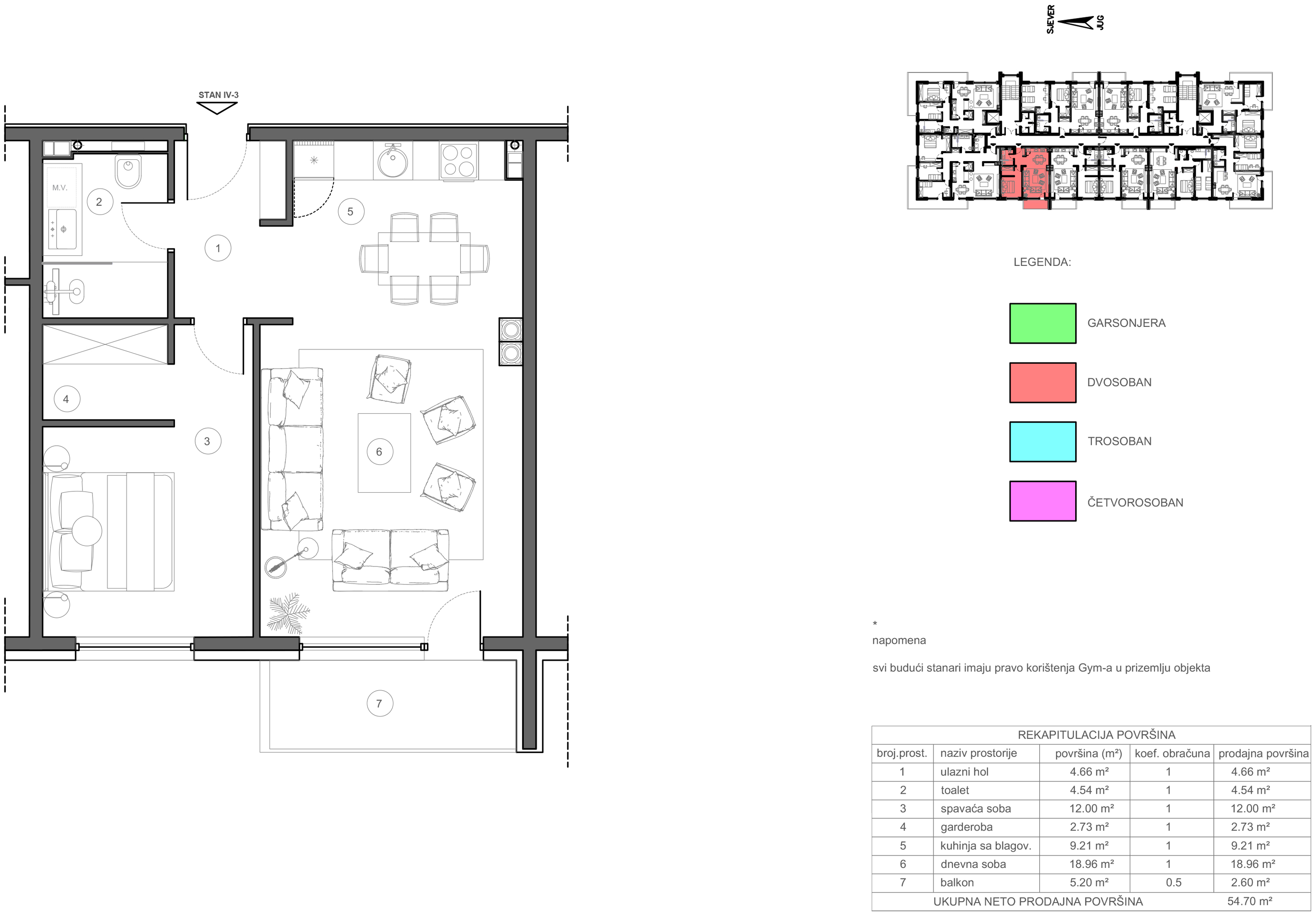
Dvosoban

54,70m2

Treći kat

4 3

logo

O nama

Adriale Living je mlada, ambiciozna investicijska tvrtka koja se specijalizirala za dinamički rastući sektor nekretnina širom Bosne i Hercegovine. Zajednički sa sestrinskom tvrtkom i strateškim udjelima tvrtke u profesionalnim... Više

KONTAKT

ADRIALE LIVING d.o.o..

Obala bb, Kreševo

Bosna i Hercegovina

+387 30 335 851

E-mail

adriale@adrialeliving.com

ADRIALE LIVING d.o.o. - 2021 sva prava pridržana Design and development logo